Zhongtuo New Design Container House Top Beam Cold Roll Forming Machine is an intelligent forming equipment that integrates cold bending roll core technology and PLC numerical control system, designed for mass production of container core load-bearing beams. The equipment realizes the full process automation operation of unwinding → leveling → multi pass roll forming → fixed length cutting → finished product output, without the need for manual intervention in the core process.
Finished product image:

Application scenarios
• Standard container manufacturing enterprises:
Suitable for mass production of top beams, side beams, and corner columns of standard sea and land containers such as 20 feet and 40 feet, meeting the needs of large-scale and standardized manufacturing, helping enterprises improve production capacity, and seize market share in logistics transportation equipment.
• Special container manufacturer:
can customize the processing of irregular beams for special containers such as refrigerated containers, tank containers, explosion-proof containers, etc., to solve the processing pain points of “mixed specifications, small batch sizes, and high precision” in the production of special containers.
• Modular construction enterprises:
used for forming beam components for container houses, temporary construction offices on construction sites, mobile homestays, and emergency relief resettlement houses, adapting to the characteristics of modular buildings such as “fast construction and flexible combination”, and helping to promote green and modular upgrading in the construction field.
• Heavy equipment and storage supporting enterprises:
Processing various types of storage rack columns, mobile cabin skeletons, heavy transport carriage beams, etc., relying on high-precision forming technology to ensure the structural strength and adaptability of supporting components, and expanding the application boundaries of equipment.
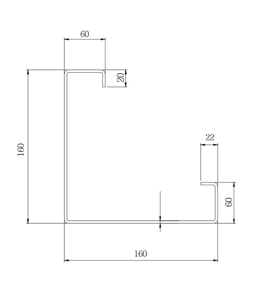
Pattern diagram:
Product Attributes :
|
1.Formed Material
|
PPGI,GI,AI
|
Thickness:1.5-3mm
|
||
|
2.Decoiler
|
Hydraulic automatic decoiler
|
Decoiler(will give you as free)
|
||
|
3.Main body
|
Roller station
|
18 rows(As your requirement)
|
||
|
Diameter of shaft
|
80mm solid shaft
|
|||
|
Material of rollers
|
Gcr 15 with quenched teeatment
|
|||
|
Machine body frame
|
Metal steel welded
|
|||
|
Drive
|
Gearbox transmission
|
|||
|
Dimension(L*W*H)
|
9500*800*1200(customize)
|
|||
|
Weight
|
About 7T
|
|||
|
4.Cutter
|
Automatic
|
cr12mov material, no scratches, no deformation
|
||
|
5.Power
|
Motor Power
|
5.5KW
|
||
|
Hydraulic system power
|
4KW
|
|||
|
6.Voltage
|
380V 50Hz 3Phase
|
As your requirement
|
||
|
7.Control system
|
Electric Box
|
Customized(famous brand)
|
||
|
Language
|
English(Support multiple languages)
|
|||
|
PLC
|
Automatic production of the whole machine. Can set batch, length, quantity, etc.
|
|||
|
18.Forming Speed
|
60-70m/min(customized)
|
The speed depends on the shape of the tile and the thickness of the material.
|
||
Core Features
1.High precision forming, zero quality error:
using 13 rows of precision formed shafts, the rollers are made of bearing steel quenching+precision grinding+surface hard chrome plating process, ensuring smooth rolling and reducing plate wear. The PLC numerical control system is equipped with encoder counting, with a pressure control accuracy of ± 1% FS, a forming accuracy error of ≤± 0.05mm, and a smooth and burr free cut, fully meeting the strict standards of the international container industry.
2.Full process automation, significant cost reduction and efficiency improvement:
replacing traditional manual tapping and simple equipment processing modes, only 1-2 people are needed to complete feeding and parameter setting, achieving continuous and standardized production. Single shift production capacity has increased by more than 40% compared to traditional processes, significantly reducing labor costs while avoiding size deviations caused by human operation. The product qualification rate has been increased to 99.9%.
3.Multi adaptability, versatile and flexible switching:
compatible with Q235, Q355B high-strength steel, galvanized steel and other materials with a thickness of 0.8-3.0mm, capable of processing a full range of core beam components such as container top beams, side beams, corner columns, etc. Equipped with a fast mold changing system, different specifications and cross-sectional shapes of molds can be switched in a short period of time, without the need to restructure the production line, making it easy to meet the customized needs of multiple varieties and small batches.
4.Hard core quality, long-term stability and low operation and maintenance:
The core components are carefully selected with high-quality accessories, and the cutting blade is made of Cr12 material and high-temperature quenched, sharp and durable; The total weight of the machine is 7.5 tons, with a stable structure and a service life of over 15 years. Equipped with an automatic lubrication system, the layout of vulnerable components is convenient, and daily maintenance only requires simple cleaning and lubrication. It can run continuously for 5000 hours without stopping for maintenance, greatly reducing operation and maintenance costs and downtime losses.
5.Intelligent control, easy to operate and maintain:
With a high-definition touch screen and a simple user interface, it supports functions such as parameter preset, batch counting, and fault warning, making it easy for beginners to get started quickly. The equipment supports seamless integration with automatic feeding machines and online detection devices, and can be integrated into fully automated production lines to achieve production data visualization and intelligent management.


















